يُعد حي القرنفل من أشهر الأحياء السكنية الموجودة بالتجمع الخامس نظراً لقربه من المناطق الحيوية بالتجمع، وهو ما جذب شركات العقارات المختلفة لإقامة أفضل مشروعاتها داخله، وعلى رأسها مشروع القرنفل 15 المطروح من قبل شركة جولدن بوينت للتطوير العقاري.

مزايا مشروع القرنفل 15

يتمتع مشروع القرنفل 15 بالتصميم الفريد للواجهة الخارجية التي تجذب إليها جميع المارة، نظراً لما تتسم به من جمال اختيار الألوان المتسقة مع التصميم الانسيابي والبسيط للمشروع.

مثلما اهتم مهندسوا شركة جولدن بوينت بالواجهة الخارجية للمشروع، فقد اهتموا أيضاً بالواجهة الداخلية له، عن طريق تشطيبها بالكامل من الرخام وإضافة بعض الديكورات الخاصة واللماسات الجمالية التي تُضفى طابعًا آخر من الرقي للمشروع.

كما يحاط مشروع القرنفل 15 بسور خاص، وعلى مدخله يتواجد أفراد أمن وحراسه على مدار 24 ساعة لحماية السكان وأطفالهم باستمرار، ويضم المشروع جراجًا خاصًا لكل وحدة سكنية تتسع لأكثر من سيارة، ومزود بكاميرات مراقبة للحفاظ على ممتلكات السكان.

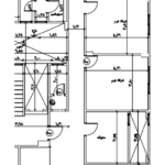
التصميم الداخلي لوحدات مشروع القرنفل 15

يتكون المشروع من ثلاث طوابق فقط -طابق أرضي بالإضافة إلى طابقين آخرين علويين-، كافة الوحدات الموجودة به لها نفس التصميم، إذ تتضمن جميعها ما يلي:

  • غرفة نوم رئيسية تقع بالجهة الخلفية من المشروع وهي أكبر الغرف مساحة، كما أنها مزودة بحمام خاص.
  • تُحاط غرفة النوم الرئيسية بثلاث غرف أخرى، واحدة مجاوره لها وأخرتين متتاليتين، جميع هذه الغرف بمساحات أصغر من الغرفة الرئيسية ولها حمام خاص قريب من جميع الغرف.
  • يفصل المطبخ الواقع في منتصف الوحدة بين جزئيها الداخلي والخارجي (الجزء الداخلي مخصص لأفراد العائلة، فهوو يضم الغرف والحمامات الداخلية).
  • تضم الجهة الخارجية من الوحدة غرفة المعيشة التي تجاور المطبخ والحمام الخارجي الخاص بالضيوف، بالإضافة إلى بلكون مطل على الشارع الرئيسي.

بالقرب من مشروع القرنفل 15 تتواجد كافة الخدمات التي قد يحتاج إليها السكان، من دور عبادة ومستشفيات طبية ومدارس لكافة المراحل التعليمية، والعديد من المحلات التجارية، بالإضافة إلى وجود أكبر المولات المصرية على بعد دقائق فقط منه، وهو ما يُغنيك عن الابتعاد عن وحدتك السكنية.

مشروع القرنفل 15 وجهتك الأمثل لشراء وحدة سكنية تتسم بأفضل التصميمات الداخلية والخارجية، داخل أفضل المواقع السكنية الموجودة بالتجمع الخامس.

يمكنك الإطلاع على سعر المتر فى القرنفل التجمع الخامس